(089) 99818819
Einsteinring 39 | 85609 Aschheim bei München
kontakt@buerovermietung24.de

Machtlfinger Höfe | München-Obersendling

Details & Lage

Die Immobilie „Machtlfinger Höfe“ ist eine der bekanntesten Büroadressen im beliebten Stadtteil München-Obersendling. Der Bürokomplex erstreckt sich über drei miteinander verbundene Baukörper mit einer Gesamtmietfläche von knapp 22.000 m². Die zweigeschossige Tiefgarage bietet 294 Pkw-Stellplätze (inkl. 48 Stellplätze mit E-Ladestation für Pkw). Das Gebäude ist nachhaltig und wurde mit dem DGNB-Zertifikat in GOLD ausgezeichnet.

Die Machtlfinger Höfe sind derzeit nahezu vollständig vermietet. Dies ist ein deutlicher Beleg für die Qualität des Objekts und des Standorts. Erst kürzlich konnten die durch den Auszug eines Großmieters entstandenen Flächenvakanzen an andere Bestandsmieter größtenteils nachvermietet werden. Die aktuell verfügbaren und in Kürze frei werdenden Mietbereiche finden Sie als Grundriss in dieser Anzeige. Die Bilder aktueller Mietflächen sind exemplarisch: grundsätzlich baut der Vermieter alle Flächen nach Mieterwunsch aus. Der genannte Angebotsmietpreis versteht sich bei Übernahme einer Mietfläche im bestehenden Ausbauzustand, renoviert. Mieterspezifische Umbauten erhöhen den Mietzins entsprechend.

Die Anbindung an öffentliche Verkehrsmittel könnte nicht besser sein: die U-Bahn-Station „Machtlfinger Straße (U3)“ befindet sich praktisch im Gebäude. Auch eine Bushaltestelle der Linie 51 ist in 170 m Entfernung vorhanden. Die Autobahn A95 und damit der Anschluss an den Mittleren Ring ist in wenigen Fahrminuten erreicht.

Ergänzende Informationen erhalten Sie auch über die Objekthomepage Machtlfinger.com

  • Stadt/ Region: München
  • Objekt-Größe: 2.460 m²
  • Stadtbezirk: Obersendling
  • Straße: Machtlfinger Straße 5-15
  • Mietpreis: 19,50 €/m²
  • PLZ: 81379
  • Kühlung: vorhanden

Merkmale

  • Ausbau nach Mieterwunsch
  • BAP-Beleuchtung
  • Behinderten-WC
  • Doppelböden
  • EDV-Verkabelung
  • Flächen teilbar
  • Glasfaser-Anschluss
  • Küche
  • Kühldecken
  • Personenaufzug
  • Pkw-Ladestationen
  • Provisionsfrei
  • Sonnenschutz außen
  • Zentralheizung
  • zusätzliche Archivflächen

Grundrisse & Pläne

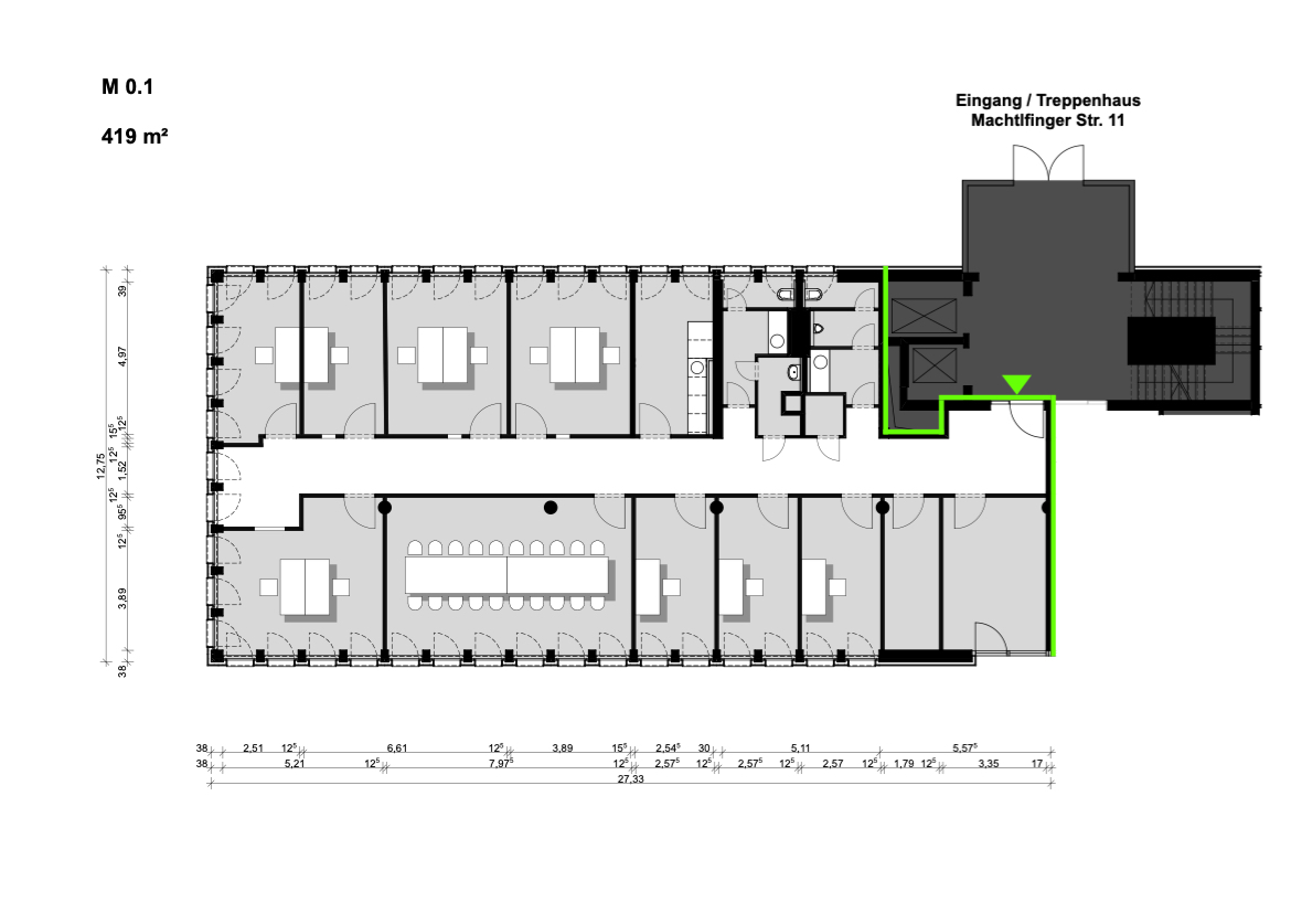
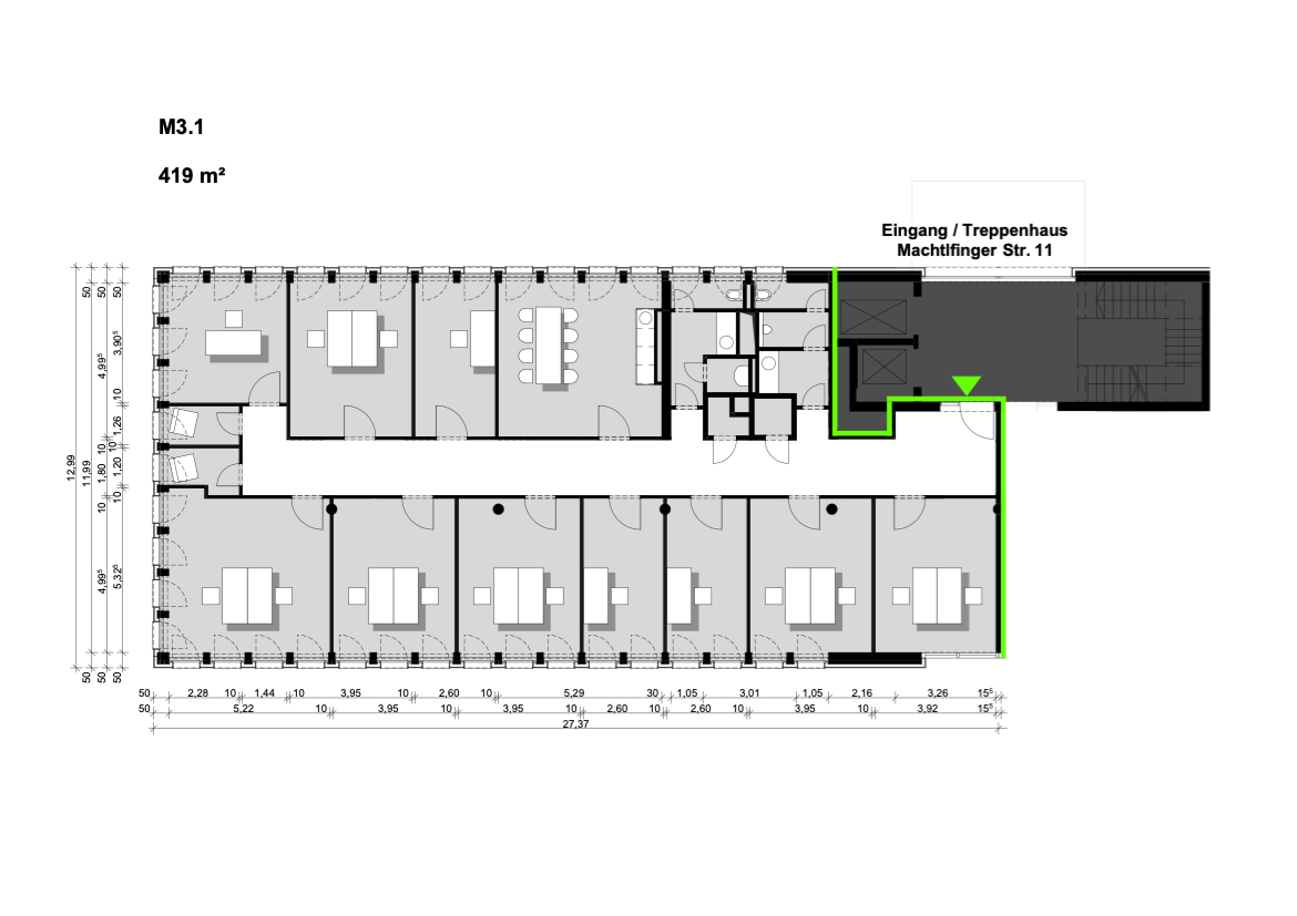
Grundriss 3. Obergeschoss (Haus 11) - 419 m²

Grundriss 2. Obergeschoss (Haus 5 + 7) - 1.307 m²

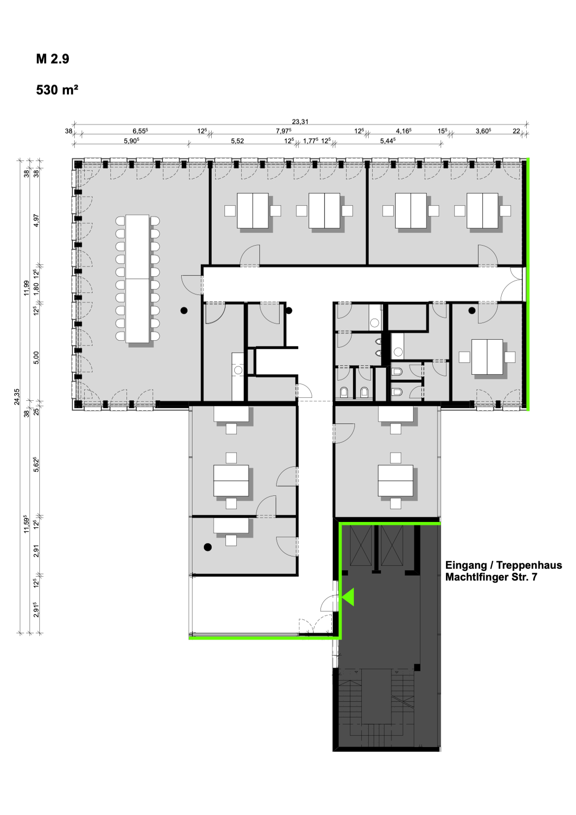
Grundriss 2. Obergeschoss (Haus 7) - 530 m²

Grundriss 2. Obergeschoss (Haus 5) - 427 m²

Grundriss 2. Obergeschoss (Haus 5) - 350 m²

Grundriss 2. Obergeschoss (Haus 13) - 313 m²

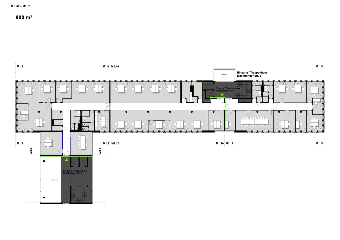
Grundriss 1. Obergeschoss (Haus 5 + 7) - 900 m²

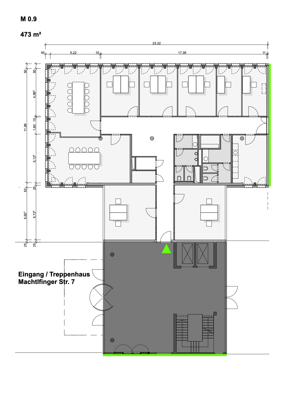
Grundriss Erdgeschoss (Haus 7) - 473 m² (raumweise anmietbar als SharedOffice)

Grundriss Erdgeschoss (Haus 11) - 419 m²

Dokumente & Downloads